504 County Road 468, FRUITLAND PARK, FL 34731
- MLS#: G5109850 ( Residential )
- Street Address: 504 County Road 468
- Viewed: 6
- Price: $335,000
- Price sqft: $132
- Waterfront: No
- Year Built: 1988
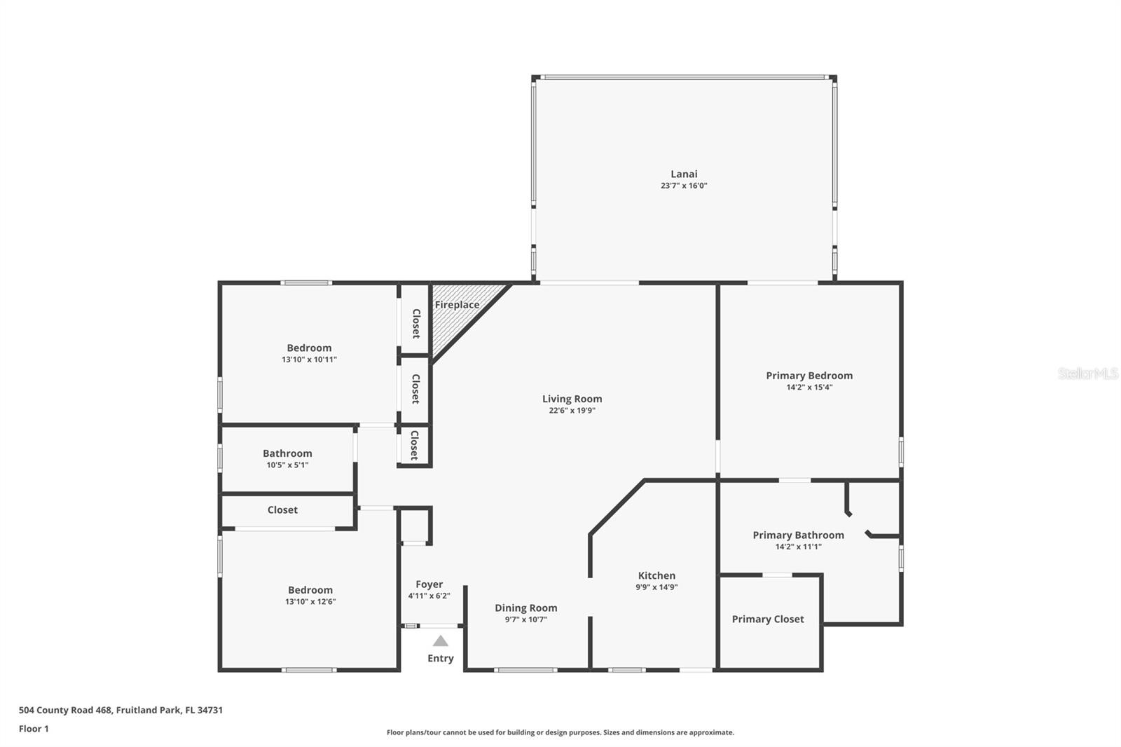
- Bldg sqft: 2529
- Bedrooms: 3
- Total Baths: 2
- Full Baths: 2
- Garage / Parking Spaces: 2
- Days On Market: 24
- Additional Information
- Geolocation: 28.8524 / -81.9171
- County: LAKE
- City: FRUITLAND PARK
- Zipcode: 34731
- Subdivision: Fruitland Park
- Elementary School: Fruitland Park Elem
- Middle School: Carver
- High School: Leesburg
- Provided by: EXP REALTY LLC
- Contact: Wyatt Rector
- 888-883-8509

- DMCA Notice
-
DescriptionWelcome to your own private slice of Florida paradise! Situated on a spacious half acre lot with no HOA, this beautifully maintained home offers the perfect blend of comfort, privacy, and convenience in one of Fruitland Parks most desirable locations. Enjoy exclusive access to Crystal Lake, your very own private lake just steps away. Take a peaceful stroll down to the pavilion, unwind as you watch stunning Florida sunsets, and experience the beauty of local wildlife right from your backyard. This is the kind of setting that truly makes every day feel like a retreat. Inside, the home welcomes you with a warm and inviting atmosphere. The cozy living room features a natural gas fireplaceperfect for relaxing on cool morningswhile the layout offers both comfort and functionality for everyday living. Step outside to the large screened porch, an ideal space to enjoy breezy spring afternoons, entertain guests, or simply take in the quiet surroundings year round. Located just minutes from the Fruitland Park Library and The Villages, youll have quick access to shopping, dining, and entertainment, all while enjoying the charm of a peaceful, small town environment with a friendly neighborhood feel. This home has been well built and thoughtfully cared for, with updates throughout. For added peace of mind, the seller is offering a brand new roof to be installed with an acceptable contract, making this an incredible opportunity for buyers looking for both value and long term security. With so much already done, this home is truly move in ready for the right buyer. If youve been searching for a property that combines location, lifestyle, and lasting quality, this is it. Come experience the beauty, tranquility, and convenienceFlorida living at its absolute best.















































